導讀
試塊的定義——用于鑒定超聲檢測系統特性和探傷靈敏度的樣件稱為試塊。
試塊根據檢定部門和使用環境可分為標準試塊、對比試塊、專用試塊。
一.試塊的用途
1、確定合適的探傷方法。
2、確定探傷靈敏度和評估缺陷大小。
3、校驗儀器及測試探頭和儀器的性能。
二.試塊的分類
試塊根據檢定部門和使用環境可分為標準試塊、對比試塊和專用試塊三類。
1、標準試塊
標準試塊—指材質、形狀、尺寸及性能均經主管機關或權威機構檢定的試塊、用于對超聲檢測裝置或系統的性能測試及靈敏度的調整。
(CSK-IA試塊)
該試塊是國家TB1152-81規定的試塊,它與國際標準試塊ⅡW相比有以下三處不同,一是將R100圓曲面改為R50、R100階梯圓曲面,可同時獲得二個反射回波,校正橫波掃描速度;二是將50孔改為40、44、50臺階孔,有利于測定斜探頭的分辨率;三是將折射角改為K值。其用途有以下幾條:
(1)利用厚度25 mm和高度100 mm,測定探傷儀的水平、垂直線性、動態范圍和調整縱波探測范圍、校正時基線。
(2)利用R50和R100調整橫波探測范圍、零位校正和測定斜探頭的入射點(前沿長度)。
(3)利用高度85、91、100 mm測定直探頭分辨力;利用40、44、50曲面測定斜探頭分辨力。
(4)利用50曲面和1.5橫孔測定斜探頭K值。
(5)利用50有機玻璃塊測定直探頭盲區和穿透力。
(6)利用試塊直角棱邊測定斜探頭 的聲軸偏斜角。
a、SH-1型半圓試塊
( SH-1型半圓試塊(mm))
該試塊最大優點是體積小攜帶方便。
可調整探測范圍,測定儀器的水平線性、垂直線性和動態范圍,測定斜探頭的入射點、折射角及調整探傷靈敏度。
b、CS-1-5試塊
( CS-1-5試塊(mm))
CS-1試塊屬成套試塊,主要用于繪制振幅-當量曲線和當量法確定被檢工件內的缺陷大小;測定直探頭聲束偏移量;測量探傷儀衰減器精度。
CS-1-5試塊是CS-1系列中的一塊,其平底孔徑為φ2 mm,常用于測試直探頭和儀器組合的靈敏度余量。
2、對比試塊
對比試塊是指調整超聲檢測系統靈敏度或比較缺陷大小的試塊。屬非標準試塊,一般采用和被檢材料特性相似的材料制成。鐵道部推薦的WGT-1、WGT一2、WGT一3 、GTS-60 以及長期延用的三角試塊都屬鋼軌探傷中的對比試塊。
a、WGT-1試塊
該試塊的一端是半徑R=40mm的圓曲面,用于測定斜探頭的入射點和前沿長度;另一端是R=15mm 的模擬鋼軌螺孔并有深3mm,與水平面(B面)36°角的螺孔裂紋;在試塊上另有一個Ф3的橫通孔,這些人工反射體均作為斜探頭靈敏度校驗之用。

(WGT-1試塊)
b、WGT-2試塊
該試塊主要用于測量探傷儀和70º探頭的距離幅度特性,它包括探傷儀的距離補償和探頭的距離幅度特性。
當從A面和B面用一次波或二次波探測時,可獲得探測深度為:5、10、15、25、35、30、45、50、55、65、70和75共計12個探測點。
(WGT-2試塊)
c、WGT-3試塊
(WGT-3試塊(mm))
該試塊主要作用如下:
(1)利用110mm底面測定儀器0°探頭通道和0°探頭的靈敏度余量。
(2)利用深3*65橫通孔測定儀器37°、70°探頭通道和探頭的靈敏度余量及楔內回波幅度測定各種探頭的聲束寬度。
(3)利用3*80橫通孔測定0°探頭的聲軸偏斜角度。
d.階梯試塊
(階梯試塊(mm))
該試塊主要用于測定0°探頭(即直探頭)通道的距離幅度、阻塞特性和0°探頭的楔內回波幅度。
3、專用試塊是指專供鋼軌探傷靈敏度校驗用的試塊,按其作用也屬對比試塊。
1.GTS-60試塊

(GTS-60試塊(mm))
該試塊是鐵道部在全路推薦的對比試塊之一,主要用于鋼軌探傷儀各探頭檢測性能的檢驗。
①軌頭中設有φ4平底孔和φ3橫孔,兩者都是檢驗70°探頭的探測性能。
②螺孔上線切割槽是檢驗0°和37°探頭的探測性能。
③軌腰上φ6橫通孔是檢驗0°探頭的探測性能。
2.GTS-60加長測試軌
(GTS-60加長測試軌(mm))
該測試軌一套兩塊,分為A型和B型。測試軌的長度 1.4 m,加工時A型和B型兩根軌配套成一個自然鋼軌接頭,各種人工缺陷的方向及位置以軌縫為中心左右對稱,其中軌頭橫孔,一根加工在外側(A型),另一根加工在內側(B型),它除了保持GTS-60試塊的作用外,還具有以下作用:
①軌頭增加了一個Φ4 mm平底孔,方便70°探頭不同組合形式下的探測性能檢驗。
②軌腰內增加了和標準孔位等高的8橫通孔,用于雙45°探頭穿透探傷靈敏度的校驗。
③軌底中心部位(第三螺孔下方)有一深3 mm、寬0.5 mm、長10 mm的“月牙形”裂紋,用于檢驗37°探頭對軌底橫向裂紋的檢測能力。
3.GTS-60C試塊
(GTS-60C試塊(mm))
GTS-60C試塊是新推出的鋼軌探傷實物試塊,除具有GTS-60加長測試軌的功能外,新增人工反射體的作用如下:
①軌頭顎部增加了一個4 mm錐底孔,用于校驗70°探頭一次波探傷靈敏度。
②軌底部增加了一個10 mm錐底孔,用于校驗0°探頭失波探傷靈敏度。
③軌底部原來1處橫向裂紋增加到3處,除了用于校驗37°探頭探傷靈敏度外,還可用于制作軌底橫向裂紋距離波幅曲線。
④軌端部增加三個Φ4 mm平底孔,用于校驗焊縫探傷(單、雙探頭法)靈敏度。
4.GHT-1試塊
(GHT-1試塊(mm))
該試塊兩端共鉆有13個Φ3 mm、深為40 mm的平底孔,主要用于60 kg/m軌焊縫探傷雙斜探頭K型或串列式探傷靈敏度的校準。
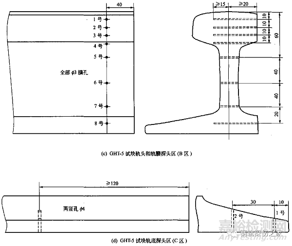
5.GHT-5試塊



( GHT-5試塊(mm))
該試塊主要用于60kg/m軌焊縫探傷靈敏度的校準:
①A區鉆有7個5 mm橫通孔,主要用于0°探頭探傷靈敏度的校準。
②B區鉆有8個3 mm橫通孔,主要用于軌頭和軌腰單斜探頭探傷靈敏度的校準。
③C區鉆有2個Φ4 mm豎孔,主要用于軌底單斜探頭探傷靈敏度的校準。
