20世紀80年代,相控陣技術開始應用于工業檢測。21世紀初,隨著電子和數字信號處理技術的發展,相控陣技術的發展尤為迅速。
DNV-RU-SHIP-Pt2Ch4:2021《挪威船級社船舶規范 第2部分-材料和焊接-第4章-制造和檢測》及DNV-OS-C401:2021《挪威船級社海上結構的制造和檢測標準》中均提到了先進無損檢測,先進無損檢測包括衍射時差法超聲檢測、相控陣超聲檢測、數字射線檢測等,先進無損檢測技術及工藝規程鑒定應符合最新版DNV-CG-0051:2022《挪威船級社指南-無損檢測》的標準要求,該標準在附錄A-1中給出了相控陣超聲檢測工藝規程的鑒定指南。下面主要對該標準中相控陣檢測焊縫的各項具體要求進行解讀。
一、DNV無損檢測的發展歷史
DNV(挪威船級社)成立于1864年,是世界著名船級社之一,也是國際權威認證機構之一,其業務涉及造船航運、海工、油氣、可再生能源等諸多行業;2013年9月DNV與GL(德國勞氏船級社)合并,成立DNV GL集團;2021年3月1日起,DNV GL更名為DNV。
DNVGL-CG-0051:2015標準在第一部分“通用要求”的第5章“人員資格”提到了特殊方法(如超聲衍射時差法、數字射線檢測、相控陣超聲、奧氏體不銹鋼/雙相不銹鋼的超聲檢測)應進行模擬試件檢測。模擬試件檢測的目的在于驗證工藝規程,也具有驗證技術人員應用該項技術能力的作用。
DNVGL-CG-0051:2015標準在第六部分“超聲檢測”的第1章“范圍”中指出,相控陣超聲檢測方法的應用需要特定的規程、進行工藝規程驗證和滿足ISO 13588:2019《焊縫無損檢測 超聲檢測自動相控陣技術的使用》的要求。
以上兩處雖然提到了相控陣超聲檢測,但并未像其他常規檢測方法一樣做出詳細的規定,給相控陣超聲的檢測實施帶來一定困擾,于是DNV-CG-0051:2022標準給出了相控陣檢測的具體要求。
二、焊縫相控陣檢測要求解讀
1、適用范圍
標準規定了使用半自動或全自動相控陣超聲技術檢測焊寬6 mm及以上金屬材料熔化焊焊接接頭的具體要求,適用于母材和焊縫材料都是低合金或細晶粒鋼的板、管、容器等簡單幾何形狀的全熔透焊接接頭。
2、檢測等級
焊接接頭的質量要求主要與材料、焊接工藝和服役條件相關。為了符合所有要求,不同于ISO 13588:2019規定了A,B,C,D四個檢測等級,DNV-CG-0051:2022標準只規定了一個檢測等級,適用于所有的焊縫范圍,該檢測等級融合了ISO 13588:2019的各等級要求,相當于一個綜合等級。
相控陣檢測焊縫應針對融合面進行線掃(ISO 13588:2019規定,如果僅基于幅度驗收缺陷,聲束偏離焊縫坡口垂線的角度不超過6°時,原則上也應用線掃),以及特定檢測技術中定義的其他掃描(例如扇掃)。
如果不連續的評估僅基于幅度,要求使用線掃掃查焊縫融合面,聲束應盡量與融合面垂直,最大偏差不應超過6°,推薦±2°。如果使用規程描述的扇掃,通過演示驗證可以檢測和定量融合面的缺陷,以上角度偏差要求可以忽略(演示驗證使用含有融合面的反射體參考試塊)。
通過長度和高度或長度和最大波幅來評估檢測指示時,應按照ISO 19285:2017《焊縫無損檢測 相控陣超聲檢測》或公認的標準和船級社的具體要求進行。尺寸評估技術包括參考等級、時間增益修正(TCG)、距離增益(DGS)和6 dB下降法。6 dB下降法只能用于測量尺寸大于波束寬度的指示。
3、檢測前所需了解的信息
檢測前應編制檢測規程及掃查計劃,掃查計劃應顯示聲束覆蓋范圍、焊縫厚度和焊縫幾何形狀。
檢測規程應包含掃查計劃,該計劃應顯示探頭位置、探頭移動和工件的覆蓋情況,以提供一個標準化的、可重復的焊縫檢測方法。掃查計劃還應包括使用的聲束角度、相對于焊縫中心線的聲束方向、聚焦的情況和每條焊縫檢測區域位置。
規程編寫前需確定以下內容:
① 檢測的目的和范圍;
② 檢測等級;
③ 驗收標準;
④ 參考試塊規格;
⑤ 執行檢測的階段(制造過程或在用階段);
⑥ 焊縫詳細信息和熱影響區尺寸;
⑦ 焊縫可接近性、表面狀態和溫度;
⑧ 人員資格要求;
⑨ 報告要求。
焊縫檢測開始前,
檢測人員還應獲取以下信息:
① 書面檢測規程;
② 母材材料和產品類型(如鑄件、鍛件或軋制件);
③ 焊接接頭制備和尺寸;
④ 焊接指導書或與焊接過程有關的信息。
4、人員要求
檢測人員最好按照ISO 9712:2012《無損檢測 無損檢測人員的資格和認證》進行第三方認證。操作和解釋人員至少需具有PA-II級資格。不執行數據解釋或分析,僅執行數據采集的人員可為PA-I級。
在焊縫超聲波檢測的常規基礎上,檢測人員應熟悉超聲波相控陣儀器的使用,并具有實際操作經驗。
DNV要求檢測人員事先提供認可的行業證書(國內特種設備PA-II級資格、ISO 9712 PA-II/III、PCN PA-II/III、CSWIP PA-II/III),使用經DNV批準的相控陣超聲檢測規程和選定的相控陣設備,在有代表性的、類似于預期檢測的、帶有自然缺陷或人工反射體的試樣上進行考試,考試通過后授予其相應檢測資格等級證書,考試結果應記錄在案。
5、設備要求
通用要求
用于相控陣檢測的設備應符合ISO 18563-2017《相控陣設備特性及校驗》的要求。
儀器要求
應選擇合適的相控陣檢測設備。推薦使用至少6倍于探頭標稱頻率的頻率作為A掃采樣頻率。
探頭要求
縱波和橫波探頭都可以使用。掃查曲面工件時,探頭匹配應符合DNV-CG-0051:2022第7部分“手動超聲檢測”的要求,楔塊底部與工件表面的間隙不超過0.5 mm。每16個陣元中最多可損壞1個,不允許相鄰陣元損壞。對于激活孔徑小于16個陣元的探頭,除非證明了性能足夠,否則不允許有壞陣元。
掃查裝置要求
為確保采集數據圖像的連續一致,應使用帶有導向和編碼功能的掃查器進行檢測。
6、試塊要求
該標準中有3種試塊,包括校準試塊、參考試塊及驗證試塊。
校準試塊應符合ISO 19675:2017《無損檢測 超聲檢測 相控陣檢測校準試塊規范》要求,試塊結構如圖1所示,主要用于聲速校準、楔塊延遲校準和ACG校準。
圖1 校準試塊結構示意
參考試塊用來確定靈敏度(TCG校準)和檢測的完整性(覆蓋情況),應選用與被檢工件相似的材料來制作(考慮聲速、晶粒結構和表面狀態)。推薦的參考試塊厚度應為被檢工件厚度的0.8~1.5倍,且試塊與工件的最大厚度差不超過20 mm。所選參考試塊的長度和寬度應能確保所有人工反射體被適當地掃查到。對于圓柱形工件的縱向焊縫檢測,應使用曲面參考試塊,其直徑應為被檢工件直徑的0.9~1.5倍。對于直徑不小于300 mm的被檢工件可采用平面參考試塊。當工件厚度t為6~25 mm時,至少需要3個反射體,反射體布置可參考圖2(Dd為橫孔直徑,l0為橫孔長度)。當工件厚度大于25 mm時,至少需要5個反射體,參考反射體為橫孔(典型的參考反射體有橫孔、槽、平底孔),各典型參考反射體的參數如表1~3所示。
圖2 工件厚度為6~25 mm的參考試塊結構示意
表1 參考試塊橫孔直徑(mm)
表2 參考試塊表面槽參數(mm)
表3 參考試塊橫孔參數(mm)
驗證試塊用于規程可行性和檢測能力評估。驗證試塊應具有人工反射體,厚度應具有代表性,試塊材料聲學特性與被檢工件相同或相近,具有產品焊縫的特征(包括焊接方法、焊縫坡口、焊縫尺寸應與實際工件一致),自然缺陷或人工缺陷應是制造工藝中出現的典型缺陷(類型、尺寸、位置)。驗證試塊應可追溯至制造材料;反射體的數量和位置應足以保證檢測的可靠性;反射體的長度、高度和位置應各不相同,缺陷之間的距離不能太近。
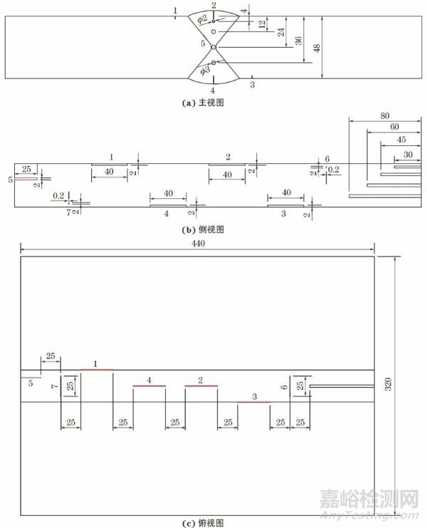
例如厚為48 mm的X型坡口工件,其驗證試塊的缺陷設置可參考圖3。驗證試塊可參照ISO 13588:2019中檢測等級為C級的參考試塊進行設計,其中表面槽1和3位于檢測區域邊緣,用來模擬熱影響區裂紋,同時驗證工藝能否覆蓋焊縫上、下兩側熱影響區(寬度覆蓋);表面槽2和4位于焊縫中心線上,用來模擬焊縫表面裂紋,同時驗證工藝對焊縫上、下表面缺陷的檢測能力(深度覆蓋);坡口面上的5號槽用來模擬未熔合,驗證坡口面上缺陷的檢測能力和定量能力,其與坡口面的夾角不應超過5°,尺寸應小于ISO 19285:2017第9節“基于長度和高度的驗收標準”中驗收等級AL2允許的最大尺寸;6和7號橫向槽用來模擬橫向近表面裂紋,驗證工藝對上、下近表面橫向裂紋的檢測能力;表面下方4 mm處的ф2 mm橫孔用來驗證工藝對近表面缺陷的檢測能力;另外3個不同長度的ф3 mm橫孔,用來對該工藝定量缺陷長度、深度、高度的準確性進行評估。

圖3 厚度為48 mm工件的驗證試塊結構示意
7、檢測準備
檢測區域
對于建造階段的檢測,檢測區域應包括焊縫及焊縫每側至少10 mm的母材區域,或者是熱影響區,以較大者為準,確保聲束覆蓋需要檢測的區域。
檢測設置的驗證
檢測設置的檢測能力應使用合適的參考試塊來驗證。
掃查步進的設置
沿焊縫的掃查步進設置取決于要檢測的工件厚度。焊縫厚度不超過10 mm時,掃查步進不超過1 mm。對于厚度為10~150 mm的焊縫,掃查步進不得超過2 mm。焊縫厚度大于150 mm時,推薦的掃查步進不超過3 mm。
幾何結構的考慮
當檢測復雜幾何結構的焊縫時,應仔細編制檢測計劃,需對聲波的傳播有深入了解,該類檢測應通過特定的工藝規程驗證,要求使用典型的驗證試塊進行性能演示。
掃查表面準備
應保證掃查表面(在足夠寬的區域內)清潔。掃查表面應平整且無可能干擾探頭耦合的異物(例如鐵銹、水垢、焊接飛濺、劃痕、凹槽)。如需要,應通過打磨掃查表面來確保這些要求。當掃查表面有其他材料,如涂層、油漆、堆焊層等,且不能移除時,應進行特定的工藝規程驗證。
溫度
當不使用特殊的高溫相控陣探頭和耦合劑時,被檢物體的表面溫度應為0~50 ℃。對于超出該范圍的溫度,應驗證設備的適用性。
耦合劑
為了獲得連續穩定的圖像,應使用耦合劑,保證探頭和材料之間恒定的超聲波傳輸。用于校準的耦合劑應與檢測時和檢測后核查中使用的耦合劑相同,如果不一致,應使用同一反射體進行比較,然后進行靈敏度補償。
8、母材檢測
應在掃查區域內用直探頭檢測母材分層。直探頭可以選擇相控陣超聲檢測探頭或常規探頭。
9、范圍和靈敏度設置
通用要求
每次檢測前均需按照標準進行范圍和靈敏度設置。當使用A掃描時,應對參考信號進行優化,使其至少具有12 dB的信噪比,當使用相控陣成像時,信噪比至少為6 dB。
脈沖回波時間窗口
脈沖回波信號的時間窗口應覆蓋整個關注區域,并在書面檢測規程中作出規定。應確保組合聲束覆蓋檢測區域。
脈沖回波靈敏度設定
選擇掃描模式(固定角度、線掃描、扇掃描)后,應對相控陣探頭產生的每個聲束(例如聲束角度、聚焦點)進行靈敏度設置;當探頭帶楔塊使用時,靈敏度設置時應使用相同的楔塊。
相控陣探頭可以使用不同的聚焦模式,如靜態聚焦和動態深度聚焦,應對每個聚焦聲束進行靈敏度設置。
角度增益修正和時間增益修正能使所有聲束角度及所有距離的信號指示具有相同幅度。
經過以上步驟,生成聲束的參考靈敏度可按照ISO 17640:2018《焊縫無損檢測 超聲檢測 技術、檢測等級及評定》手動超聲的靈敏度要求設置。
設置復核
至少每4小時和檢測完成后,進行設置復核。如果單次檢測任務時間超過4小時,則應在檢測完成后進行設置復核。
如果參考試塊用于初始設置,則應使用同一試塊進行復核,也可以使用體積較小,傳輸特性已知的試塊進行復核。如果在復核過程中發現數據與初始設置存在偏差,則應按表4進行修正。
表4 靈敏度和范圍修正
10、設備核查
核查超聲相控陣系統的所有相關通道,確保探頭和電纜線是工作良好的。這些核查應在每日檢測前和檢測后進行。如果系統的任何部分失效,應采取修正措施,并重新檢測系統。
11、檢測規程工藝驗證
規程的批準通常是針對某個項目的,并且只有當所有重要變素與工藝驗證記錄保持一致時才有效,重要變素為探頭(晶片數量、間距、尺寸)、聚焦范圍、聚焦法則、虛擬孔徑尺寸、楔塊參數、掃查計劃、掃查技術、焊縫幾何結構、根部和焊冠設置、工件厚度范圍、管徑、軟件等。
應根據每個項目的規程應用范圍建立工藝規程驗證(ISO 13588:2019規定,檢測等級B,C,D需進行工藝規程驗證,在參考試塊上演示即可)。除非得到船級社的同意,否則檢測規程需在驗證試塊上進行演示來驗證規程的可接受性(例如檢測靈敏度、覆蓋情況、缺陷定量能力、缺陷評定能力)。首次檢測前應完成令人滿意的工藝規程驗證。
滿意的工藝規程驗證包括:
① 檢測出所有需檢出的反射體;
② 具有規范要求的測量缺陷高度、長度、深度、位置和表征類型的能力;
③ 深度和寬度的完整覆蓋。
所有掃查均應具有唯一識別編號,檢測數據文件應包括所有原始掃描數據的硬拷貝和電子備份。
12、焊縫檢測
初始檢測之前,應使用掃查計劃核實波束覆蓋區域并在合適的參考試塊上進行演示。探頭位置相對于焊縫中心線可接受的偏差范圍應在檢測規程中指出,并包含在掃查計劃中。
在初始掃查時,檢測到的一些缺陷可能需要進一步評估(例如偏置掃查、垂直于不連續的掃查、補充的相控陣設置掃查)。
選擇的掃查速度應能得到令人滿意的圖像。掃查速度Vmax取決于許多因素,例如聚焦法則數量M、掃查步進ΔX、信號平均次數N、脈沖重復頻率P、數據采樣率、被檢測區域最大聲程S、聲速c等,計算式為:
掃查線的缺失意味著掃查速度過高。在單次掃查過程中最多允許總掃查線的5%缺失,但不允許相鄰掃查線缺失。
如果沿焊縫長度方向分多個區段檢測,則相鄰掃查區域之間至少要有20 mm的重疊。掃查環焊縫時,最后一次掃查的終點應與第一次掃查的起點至少有20 mm的重疊區。
13、數據存儲
應采用基于計算機數據采集的設備進行相控陣超聲檢測。應當存儲覆蓋檢測區域的所有A掃描數據,并且所有帶有設置參數的數據集都應包括在數據記錄中,所有數據應在合同約定的時間內存儲。
14、數據解釋和分析
通用要求
典型的相控陣數據解釋和分析按如下要求進行:
① 評估相控陣數據的質量;
② 識別相關指示;
③ 按照規定對相關不連續進行分類;
④ 按照規定確定不連續位置和大小;
⑤ 按照驗收標準評定數據。
評估相控陣數據的質量
滿意的圖像可通過以下幾項參數描述:
① 耦合;
② 時基設置;
③ 靈敏度設置;
④ 信噪比;
⑤ 飽和指示;
⑥ 數據采集。
相控陣成像質量的評估需要有技能和經驗的檢測人員進行,成像質量評估人員應能確定不滿意的成像是否需要重新進行數據采集。
相關指示的識別
相控陣成像包括了焊縫中的不連續和被檢工件的幾何特征。為了區別指示和幾何特征,應了解被檢工件的具體信息。為了確定一個指示是否是相關指示(由焊縫中不連續導致),應考慮指示的形狀、相對于噪聲水平的信號波幅,以及相控陣成像的模式或擾動情況。
相關指示的分類
根據指示的幅度、位置、模式對不連續類型進行分類。
位置確定
通過相關指示確定不連續平行于焊縫軸線的位置x、垂直于焊縫軸向y和焊縫厚度方向的位置z,坐標定義如圖4所示。
圖4 相控陣圖像的坐標定義
長度確定
不連續的長度定義為指示沿著x軸的距離。指示長度應根據固定回波幅度技術獲得(測量回波超過評定等級的探頭移動距離)。
高度確定
不連續的高度定義為指示在z軸上的最大距離,對于長度方向上高度不同的指示,以較大值作為缺陷高度。
如果可以識別衍射信號,應使用衍射信號來確定高度。
使用基于幅度的信號和其他信號,如參考等級的幅度、TCG、下降6 dB、反射體的聲時、波型轉換信號的飛行時間等也可確定高度。
采用的高度測量方法應在檢測規程里說明,并獲得雙方同意。
15、驗收標準
所有相關指示經分類、確定其位置和長度并進行評估后,除非規范相關部分另行規定,否則缺陷應按照ISO 19285:2017中的AL2級進行驗收,關鍵焊縫也可使用AL1級驗收。ISO 5817:2014《鋼、鎳、鈦及其合金的熔化焊接頭 缺欠質量等級》的質量等級,ISO 13588:2019的檢測技術、檢測等級,DNV-CG-0051:2022的檢測等級,ISO 19285:2017的驗收等級之間的關系如表5所示。
表5 各標準檢測質量等級的相互關系
16、檢測報告
檢測報告可參照附錄A-1.5提供的報告模板編寫應至少包括以下信息:
① 被檢工件的相關信息;
② 檢測設備相關信息;
③ 檢測技術相關信息;
④ 相控陣設置相關信息;
⑤ 檢測結果相關信息。
三、結語
從整體結構及內容上看,DNV-CG-0051:2022與ISO 13588:2019相差不大,DNV相控陣檢測標準由ISO 13588:2019轉化而來,但標準更具針對性、更嚴謹,主要體現在以下幾方面:
(1) 工藝規程驗證部分專門給出了A1-相控陣超聲檢測工藝規程驗證導則,提供了一個規程核查清單便于檢測人員編制規程時參考對照。
(2) 只用一個檢測等級覆蓋所有質量等級焊縫的檢測,但應針對坡口面使用線掃,主要掃查坡口面上的缺陷,外加其他掃查技術覆蓋檢測整個焊縫。
(3) 檢測工藝規程需要根據檢測范圍在有代表性的焊縫試件上進行演示驗證(可選擇檢測規程厚度范圍的最小值、中間值、最大值進行演示),一般只要重要變素規定的數值不變更(對性能參數沒影響),該規程便可用于其他項目。
(4) 考慮到不同缺陷的檢測能力存在差異,參考試塊上調試TCG使用的反射體統一使用橫孔,驗證試塊也應使用尺寸已知的缺陷,便于缺陷定量能力評估。
